
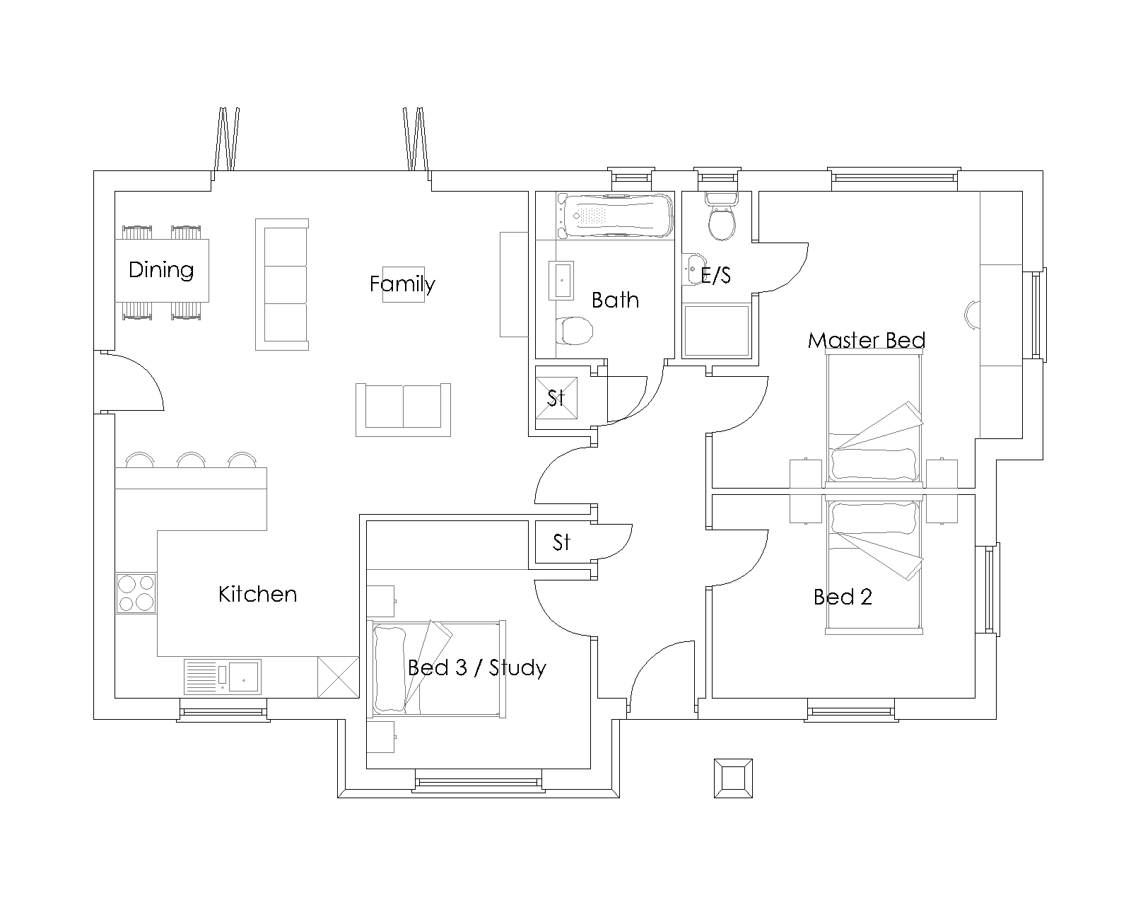
3 Bedroom Detached Bungalow
The Wigmore bungalow, with its open-plan lounge, kitchen and dining area opening out into the garden, is the perfect space in which to relax, entertain or work from home. With folding patio doors, this stunning home lets you bring the fresh air of the outdoors, indoors.
- Front lawned garden with planted borders
- Covered porch area
- Hallway leading into main living areas
- Fully-fitted main bathroom
- 3 bedrooms (including Master Bedroom with en-suite)
- Spacious fully-fitted kitchen with breakfast bar and modern appliances, overlooking front garden
- Large open-plan lounge and dining area with folding patio doors opening onto south-facing back garden
- Built-in storage
- Dedicated utility cupboard
- Enclosed lawned garden
- Detached garage.
The Lifestyle
Bratton Gardens is a select development of just six properties on the rural outskirts of Market Drayton.
Sitting between open countryside and the historic town, Bratton Gardens is perfectly placed to enjoy the best of both worlds. The town centre is just a 15-minute walk away, while the local tennis club, golf course, gym and swimming pool are all just a stone’s throw from Bratton Gardens.
Nearby, the meandering Shropshire Union Canal offers peaceful waterside walks, while numerous National cycle routes provide leisurely bike rides through the town and countryside.
The Layout

The floor plans above are intended to give a general indication of the proposed floor layout. Dimensions quoted are not intended to form part of any contract or warranty unless specifically.
Therefore, please don’t rely on dimensions quoted for carpet or flooring sizes, appliance spaces or items of furniture. Our Sales Advisor will be happy to provide the exact details of the treatments specified for individual plots.
The Location
Bratton Gardens is located just off Steven’s Grove in Drayton Meadows, close to the A53 with fantastic transport links to the north and south.
Enquire about The Wigmore
For all sales enquiries, please contact:
Barbers Estate Agents
Tower House, Maer Lane, Market Drayton
Call 01630 653641
Email marketdrayton@barbers-online.co.uk






